Wohnen in traumhafter Lage! 3-Raum Wohnung an der Goitzsche
Immobilie
- 06749 Bitterfeld-Wolfen
- Am Leineufer 8
- Objektnr 1.852.8505
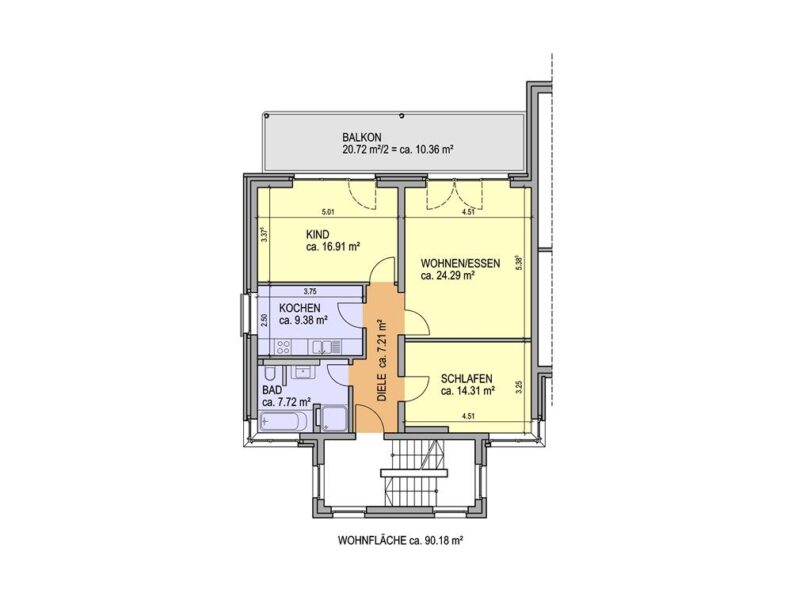
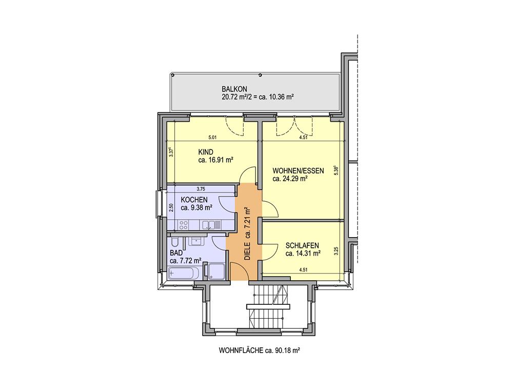
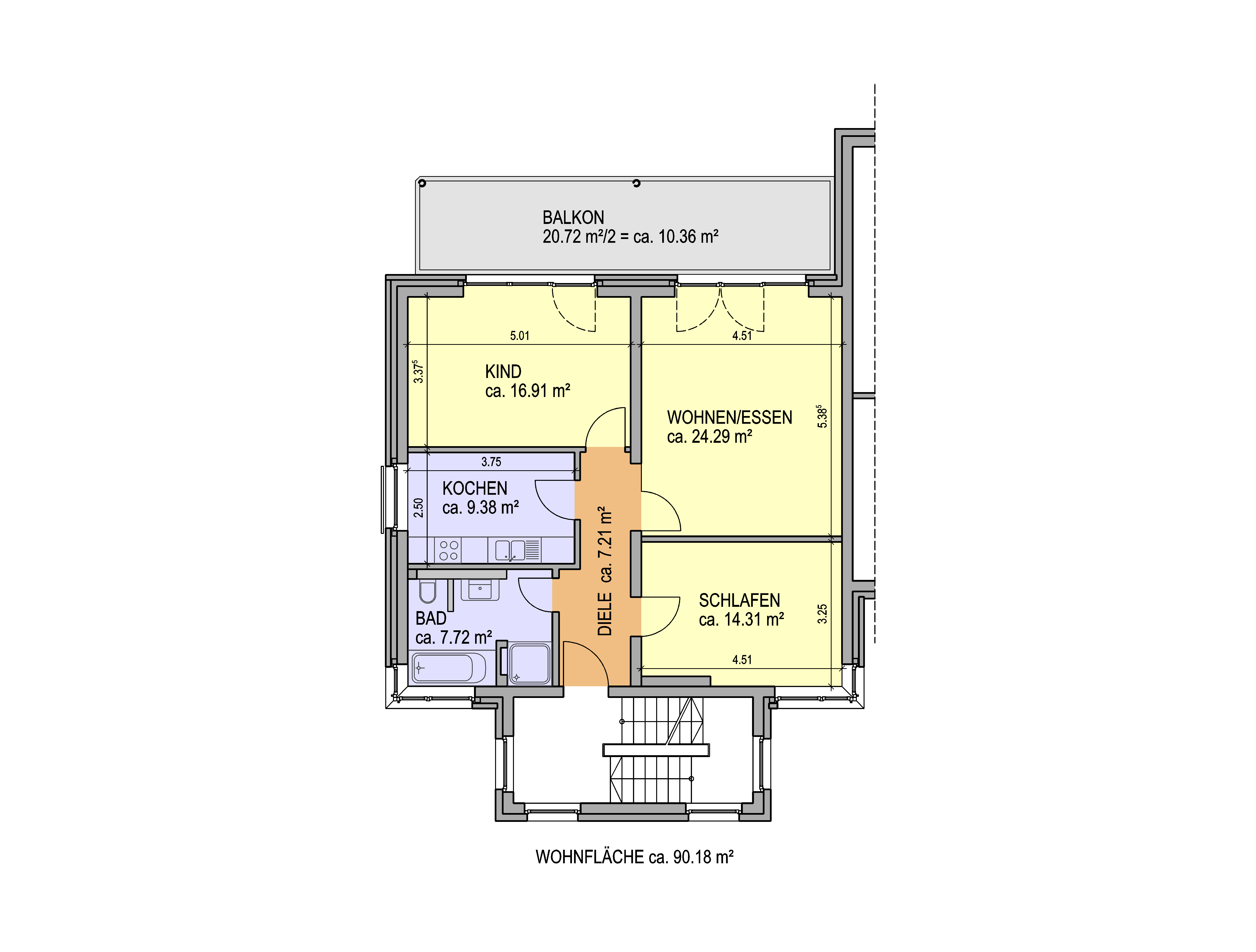
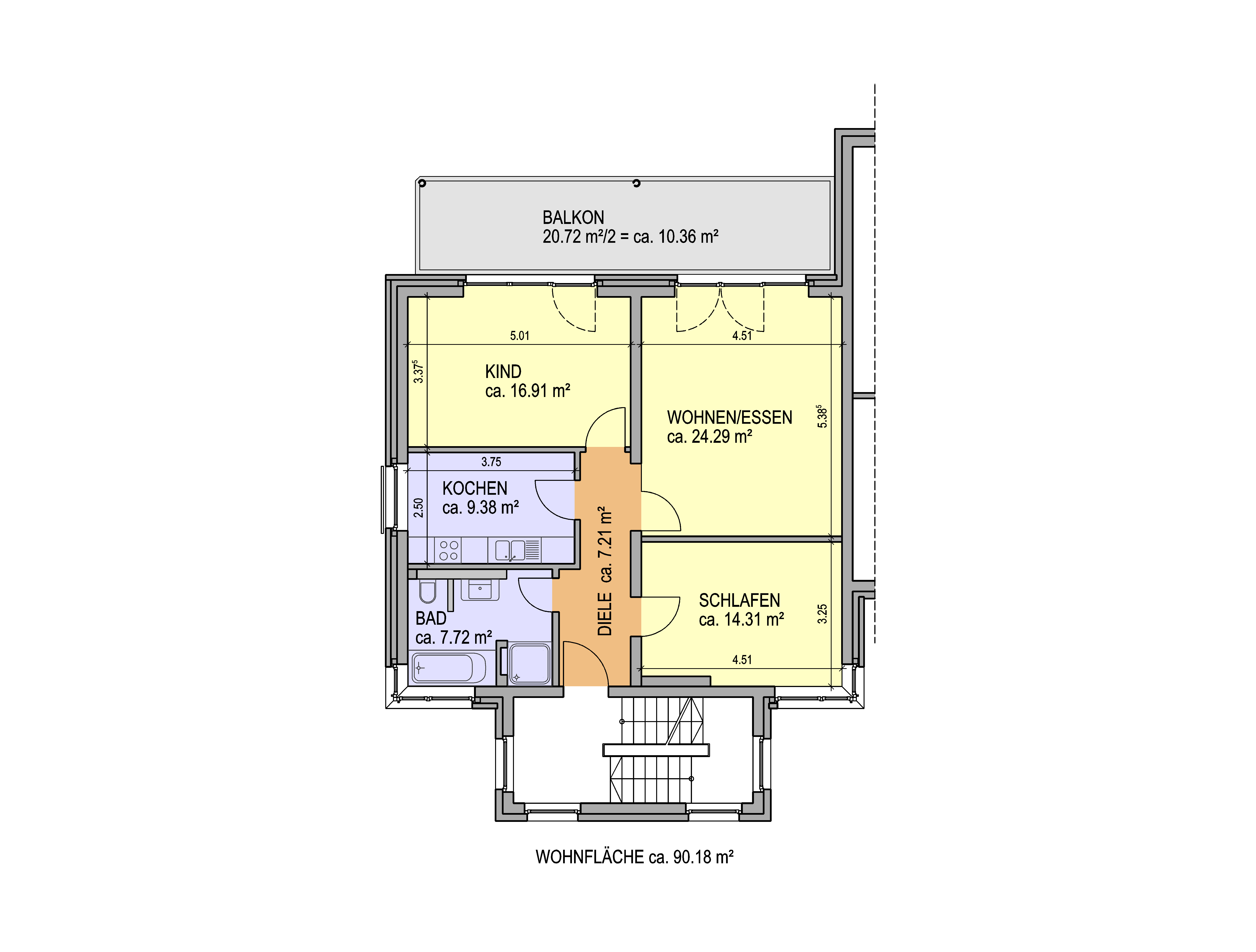
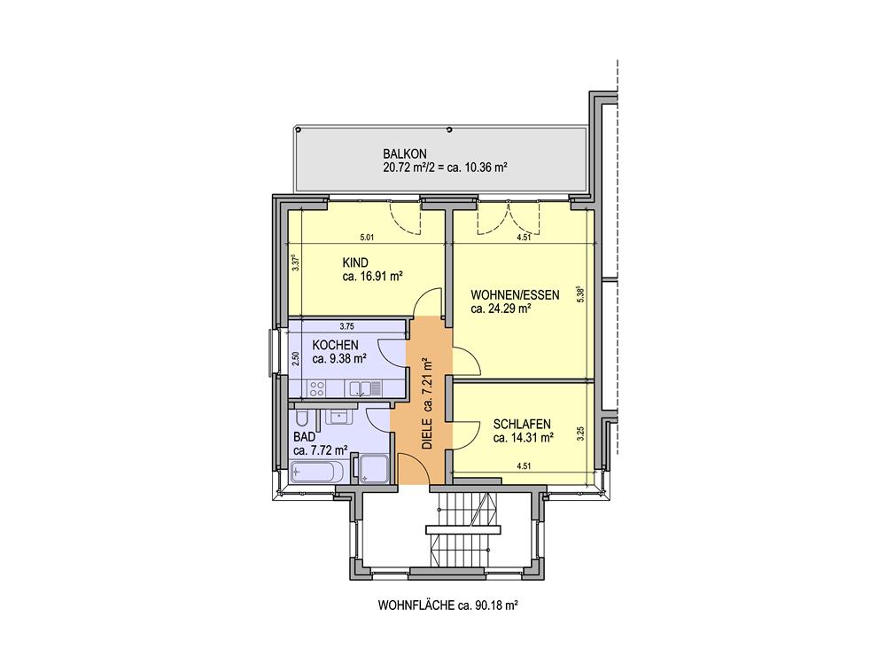
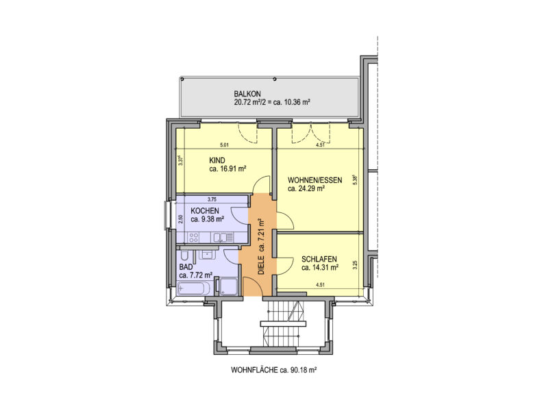
- Wohnfläche 90.18 m²
- Zimmer 3
- Balkone 1
- Beheizbare Fläche 79.82 m²
- Stellplätze 1
- Nettokaltmiete1262 €
- Warmmiete1576 €
- Nebenkosten294 €
Ausstattung
| Bad | Dusche, Wanne, Fenster |
| Boden | Laminat |
| Heizungsart | Fernwärme |
| Abstellraum | |
| Fahrradraum | |
| E-Herd-Anschluss | |
| Laminat | |
| Badewanne | |
| Dusche | |
| Fernwärme mit Warmwasser | |
| Balkon | |
| Telefonanschluss | |
| Satellitenanlage | |
| über Fernwärmeversorgung |
Objektbeschreibung
Der 3-geschossige Neubau wurde 2011 gebaut. Insgesamt befinden sich 12 Wohnungen aufgeteilt auf 3 Hauseingänge in diesem Wohnobjekt. Die großzügig geschnittenen 2 bis 3-Raum- Wohnungen haben eine Wohnfläche von ca. 53 m² bis ca. 141 m². Die Gesamtgebäudewohnfläche beträgt 888,27 m². Beheizt wird das Objekt über eine Fernwärmeheizung mit zentraler Warmwasseraufbereitung. Ein Fahrradraum, ein Waschmaschinen, - sowie Trockenraum die sich im Keller befinden gehören hier selbstverständlich mit zur Wohnung. Außerdem besitzt jede Wohnung einen separaten Keller. Ein wohnungsbezogener Stellplatz befindet sich direkt neben dem Gebäude, wobei weitere öffentliche Parkplätze vor dem Objekt zur Verfügung stehen.
Lage
Die Wohnung befindet sich direkt am Goitzscheufer. Umgeben von etlichen Alt-und Neubauten, dem historischen Marktplatz verbunden mit seinem Boulevard und dem Goitzschesee bietet dieses Wohnviertel Abwechslung in jederlei Hinsicht. Nutzen sie hier die zahlreichen Möglichkeiten der sportlichen Aktivitäten wie z. B. wakeboarden, walken, laufen, angeln, Fahrrad fahren auf unterschiedlichsten Rad- und Wanderwegen, surfen, und vieles mehr. Kaffee trinken, shoppen, spazieren gehen, die Altstadt bewundern oder einfach am Goitzsche- Ufer die Seele baumeln lassen, alles kann man hier unmittelbar vor der Haustür verwirklichen. Selbstverständlich haben Sie alles, was für den Alltag notwendig ist fußläuferisch in der Nähe, wie z.B. Supermärkte, Textilgeschäfte, Ärzte, Anwälte, Restaurants, Cafés u.a. Auch Nahverkehrsmöglichkeiten sind nur wenige Gehminuten entfernt. Am zentralen Umsteigepunkt am "Schweinemarkt" gelangen Sie so gut wie in jede Richtung aus Bitterfeld. Das Leineufer ein Wohngebiet für Jung und Alt. Ein harmonisches Miteinander ist hier garantiert.
Kontakt
Ansprechpartner:
Vermietungsservice
E-Mail:
Tel.:
Adresse
Burgstraße 37, 06470 Bitterfeld-Wolfen
Energieausweis
- Energieausweistyp
- Verbrauchsausweis
- Energiekennwert
- 53,0 kWh/(m²*a)
- Energieeffizienzklasse
- B
- Heizungsart
- Fernwärme
Bilder
Bild 1
Bild 2
Bild 3
Bild 4
Bild 5
Bild 6
Bild 7
Grundriss







