Büroräume in Bitterfelder Innenstadt
Immobilie
- 06749 Bitterfeld-Wolfen
- Burgstraße 16a
- Objektnr 1.802.1301
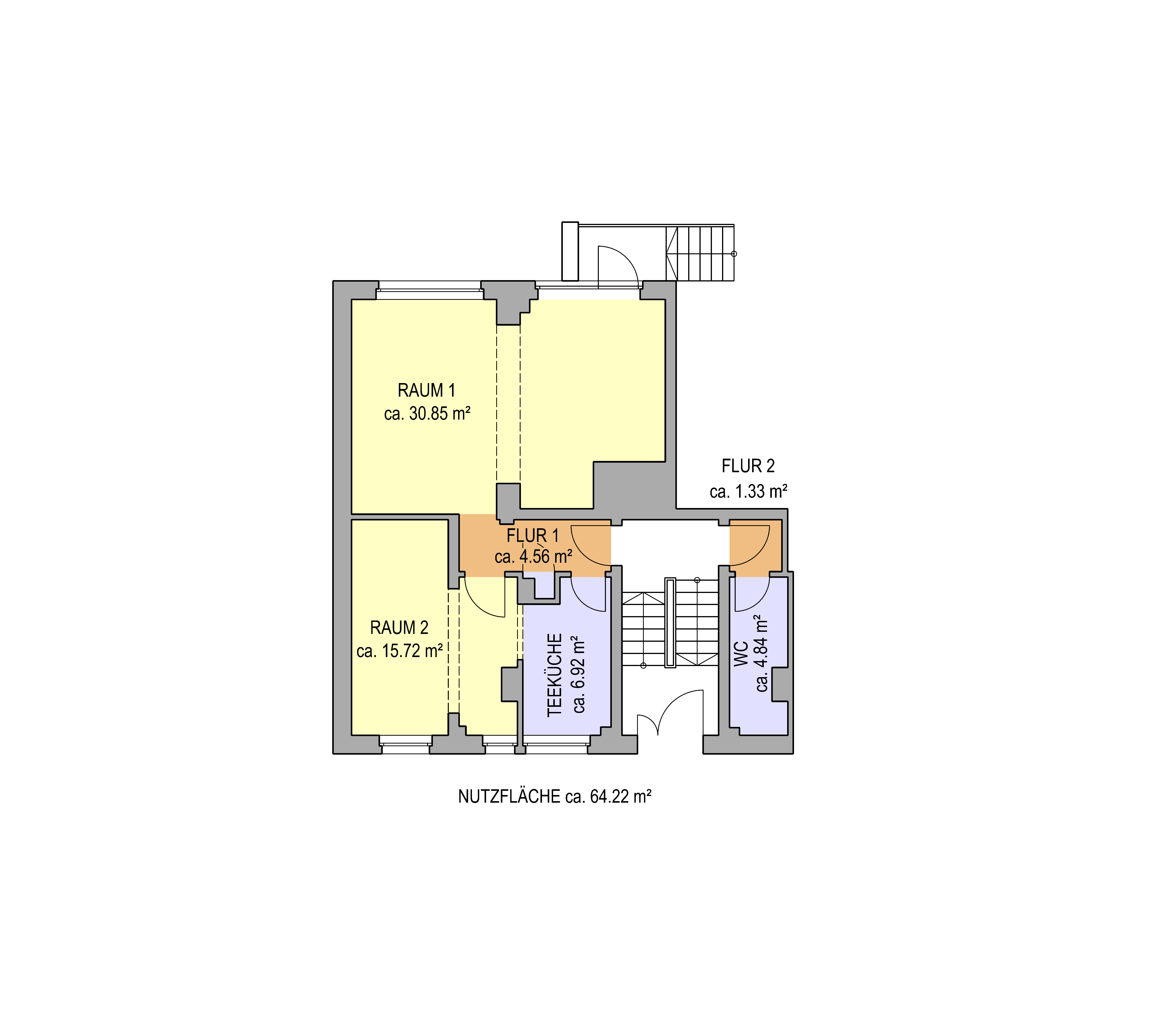
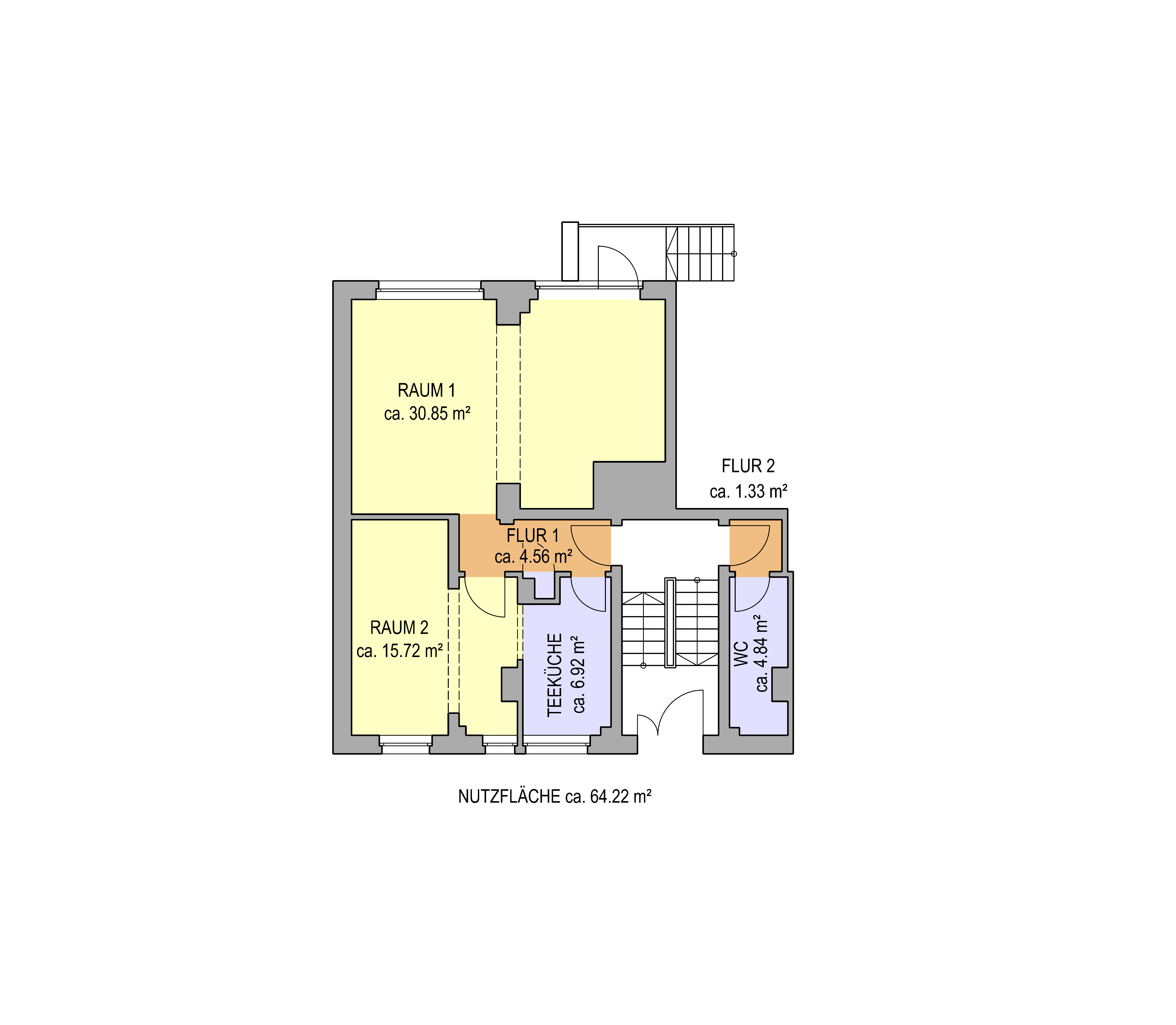
- Wohnfläche 64.22 m²
- Zimmer 2
- Sep_wc 1
- Beheizbare Fläche 64.22 m²
- Nettokaltmiete420 €
- Warmmiete535 €
- Nebenkosten115 €
- Kaution1260 €
Ausstattung
| Heizungsart | Fernwärme |
| Fernwärme | |
| Telefonanschluss | |
| über Fernwärmeversorgung |
Objektbeschreibung
Die gedämmte 5-Stöckige Wohnanlage ist saniert. Insgesamt befinden sich 33 Wohnungen in 4 Eingängen in diesem Wohnobjekt. Außerdem verfügt es noch über 4 Gewerbeeinheiten. Das Objekt wurde im Jahre 1974 errichtet. Beheizt wird das Objekt über Fernwärme, inklusiver zentraler Warmwasseraufbereitung. Öffentliche Parkmöglichkeiten befinden sich direkt hinter der Wohnanlage, außerdem können auch direkte Stellplätze angemietet werden.
Lage
Das Objekt befindet sich inmitten der Bitterfelder Innenstadt.
Umgeben von etlichen Alt- und Neubauten, dem historischen Marktplatz verbunden mit seinem Boulevard, der Grünanlage "Grüne Lunge" und natürlich dem Erholungszentrum Goitzsche bietet die Bitterfelder Innenstadt Abwechslung in jeder Hinsicht. Ob Sie gerne einen Kaffee trinken gehen, shoppen, spazieren, die Bitterfelder Altstadt bewundern oder einfach zur Goitzsche gehen und die Seele baumeln lassen, alles kann man in der Bitterfelder Innenstadt innerhalb von maximal 5 Gehminuten verwirklichen.
Auch sind Nahverkehrsmöglichkeiten durch Busse direkt vor der Haustür gewährleistet. Am zentralen Umsteigepunkt am "Schweinemarkt" gelangen Sie so gut wie in jede Richtung aus Bitterfeld.
Die Innenstadt eignet sich für Jung und Alt, Single und Familie. Durch die zentrale Lage haben Sie unmittelbaren Zugang zu fast allem, was Bitterfeld bietet.
Umgeben von etlichen Alt- und Neubauten, dem historischen Marktplatz verbunden mit seinem Boulevard, der Grünanlage "Grüne Lunge" und natürlich dem Erholungszentrum Goitzsche bietet die Bitterfelder Innenstadt Abwechslung in jeder Hinsicht. Ob Sie gerne einen Kaffee trinken gehen, shoppen, spazieren, die Bitterfelder Altstadt bewundern oder einfach zur Goitzsche gehen und die Seele baumeln lassen, alles kann man in der Bitterfelder Innenstadt innerhalb von maximal 5 Gehminuten verwirklichen.
Auch sind Nahverkehrsmöglichkeiten durch Busse direkt vor der Haustür gewährleistet. Am zentralen Umsteigepunkt am "Schweinemarkt" gelangen Sie so gut wie in jede Richtung aus Bitterfeld.
Die Innenstadt eignet sich für Jung und Alt, Single und Familie. Durch die zentrale Lage haben Sie unmittelbaren Zugang zu fast allem, was Bitterfeld bietet.
Kontakt
Ansprechpartner:
Vermietungsservice
E-Mail:
Tel.:
Adresse
Burgstraße 37, 06470 Bitterfeld-Wolfen
Energieausweis
- Energieausweistyp
- Verbrauchsausweis
- Energiekennwert
- 90,0 kWh/(m²*a)
- Energieeffizienzklasse
- C
- Heizungsart
- Fernwärme
Bilder
Bild 1
Bild 2
Bild 3
Bild 4
Bild 5
Bild 6
Grundriss



_58.jpeg)


